- 淄博市福民化工設備有限公司
- 地址:山東省淄博市張周路
- 電話:400-0533-907
- 傳真:0533-2860177
- 內貿:18753392299
- 外貿:18753392288
- 郵箱:fuminsale@126.com
您當前位置:主頁 > 產品世界 > 搪玻璃(搪瓷)設備 > F系列搪玻璃反應釜(反應罐) >
F型搪玻璃/搪瓷反應釜(反應罐)
來源:福民化工??日期:2015-07-03



F型搪玻璃反應釜的規格有F1000、F1500、F2000、F2500、F3000、F5000、F6300、F8000、F10000、F12500、、F16000、F20000、F30000等。對于不同型號的設備,技術參數也是不同的,我們先大概了解一下搪玻璃反應釜的技術參數,具體的參數可以咨詢在線顧問。
技術參數:
1.設計壓力:罐體=0.2MPa、0.4MPa、0.6MPa、1.0MPa、夾套=0.6MPa
2.攪拌器:具有多種型式的攪拌器供用戶選擇
3.減速機:立式減速機
4.軸封:填料密封(0.2MPa)、單端面機械密封((OAMPa)、雙端面機械密封(O.6MPa. l一 OMPa)
5.罐體設計壓力超過0.6MPa的搪玻璃反應罐需特殊定貨
6.K系列反應罐主體尺寸符臺HG/ T2371-92. GB:T 25027-2010標準,并在此基礎上進行了改進。
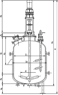
F型搪玻璃反應釜管口方位:


F型反應罐搪瓷反應罐外型尺寸及其參數表:
|
反應釜系列
|
F系列閉式搪玻璃反應釜反應罐參數表 |
||||||||||
|
反應釜型號
|
F-2500
|
F-4000
|
F-6300
|
F-12500
|
F-16000
|
F-20000
|
F-30000
|
||||
|
公稱容積N(L)
|
2500
|
3000
|
4000
|
5000
|
6300
|
8000
|
10000
|
12500
|
16000
|
20000
|
30000
|
|
實際容積(L)
|
3385
|
3381
|
4780
|
6011
|
6866
|
9060
|
11674
|
13651
|
17446
|
21790
|
32610
|
|
換熱面積(m2)
|
8.68
|
9.74
|
12.16
|
14.89
|
19.89
|
18.38
|
21.35
|
24.89
|
29.48
|
34.04
|
44.7
|
|
D1 mm
|
1600
|
1600
|
1600
|
1750
|
1750
|
2000
|
2200
|
2200
|
2400
|
2600
|
3000
|
|
D2 mm
|
1750
|
1750
|
1750
|
1900
|
1900
|
2200
|
2400
|
2400
|
2600
|
2800
|
3200
|
|
H1 mm
|
195
|
195
|
195
|
195
|
195
|
197
|
197
|
197
|
197
|
210
|
280
|
|
H2 mm
|
1590
|
1810
|
2290
|
2410.5
|
2766.5
|
2760
|
2933
|
3453
|
3696
|
3941
|
4440
|
|
H3 mm
|
1060
|
1060
|
1060
|
1200
|
1200
|
1200
|
1300
|
1300
|
1400
|
/
|
/
|
|
H4 mm
|
440
|
440
|
440
|
477.5
|
477.5
|
550
|
600
|
600
|
650
|
700
|
800
|
|
H5 mm
|
1358
|
1358
|
1358
|
1475
|
1475
|
1545
|
1770
|
1770
|
1865
|
1865
|
2200
|
|
H6 mm
|
540
|
540
|
540
|
600
|
600
|
600
|
600
|
600
|
600
|
600
|
700
|
|
d mm
|
800
|
800
|
800
|
900
|
900
|
1100
|
1200
|
1200
|
1300
|
1300
|
1500
|
|
H mm
|
4123
|
4343
|
4823
|
5158
|
5514
|
5652
|
6100
|
6620
|
7008
|
7316
|
8420
|
|
HO mm
|
3658
|
3878
|
4358
|
4633
|
4989
|
5127
|
5575
|
6095
|
6483
|
6791
|
7800
|
|
檢查孔(mm)
|
300×400
|
300×400
|
300×400
|
300×400
|
300×400
|
300×400
|
300×400
|
300×400
|
450
|
450
|
450
|
|
參考重量(Kg)
|
3300
|
3660
|
4230
|
5090
|
5600
|
6846
|
8936
|
10466
|
12137
|
14169
|
20700
|
F型搪玻璃反應釜與K系列唐玻璃反應釜的材質是相同的,都是由含有SiO?的搪瓷釉料噴涂在鋼制容器內表面,經高溫灼燒工藝而牢固地密著于金屬表面上而形成的。F型搪玻璃反應釜的獨特之處則在于閉式搪瓷反應釜罐蓋與罐體一體不可分的反應釜。使用方便,易于維護維修。具有玻璃的穩定性和金屬強度的雙重優點,是一種優良的耐腐蝕化工設備,具有耐腐蝕、抗沖擊、光滑美觀、絕緣耐熱、耐磨等可靠性能。搪瓷反應釜目前被廣泛地應用于化工、石油、醫藥、農藥、食品、染料等工業生產過程,是水解、中和、結晶、混合、乳化等最理想的設備。
F型搪玻璃反應釜也被稱為F型搪玻璃反應罐、F型搪瓷反應釜、F型搪瓷反應罐、F型搪玻璃反應鍋、F型搪瓷反應鍋等。由于地區不同,搪瓷設備搪燒的溫度不同,所以在搪玻璃反應釜和搪瓷反應釜有了細微的區別。 由于搪玻璃反應釜的用途與化工、石油、醫藥等有關,所以在一些功能上有獨特之處,這就需在反應中能夠達到充分攪拌的效果了,還配備了加熱裝置和溫控系統,備有豐富的模塊化功能選件,供您自由拓展額外功能,無需拆卸即可輕松進行清洗維護工作,使用從此變得更為簡單。
關于F型搪玻璃反應釜的規格大小在上文小編已經提到了,所以在這就不多說了,如果大家有需求的話,可以聯系我們的在線顧問,我們會竭誠為您服務!

上一篇:沒有了
下一篇:沒有了







